Shop & Fabrication Drawing Services
The shop drawings generated by our team prove to be beneficial for architects, contractors, sub-contractors, fabricators, manufacturers, suppliers, owners, and developers during various stages of the project. Our extensive experience in dealing with residential, commercial, industrial, institutional, government, and infrastructural projects make us a one-stop solution for all of your shop & fabrication drawing needs. We have provided BIM services for projects ranging in complexity and size for clients globally.
Shop drawings function as a key aspect of any construction project, and they depict sizes, dimensions, assembly, material specifications, and other fabrication details. Our team of experts ensures that the shop drawings generated are reliable and conformant with the design intent. Our shop drawings assist the project execution crew in the following ways:
It facilitates clear communication and easy access to information for all parties such as architects, MEP designers, and fabricators.
It helps in verification and validation by design team ensuring compliance with design and specifications.
It provides fabricators with all the information essential for assembling and fabricating the components.
It aids manufacturers to gain a clear understanding of the materials and instructions essential to fabricate the different elements.
It assists general contractors & erectors as it gives guidance for erecting the components efficiently & safely at site.
It helps in expediting the delivery timelines of your project significantly, and in availing maximum benefits reducing fabrication reworks and budget overrun.
Architectural Shop Drawings:
Architectural shop drawings are significant for general contractors, interior contractors, millwork fabricators and civil contractors for accurate fabrication & construction tasks as they embed the precise details on component size, orientation, shape, location, assembly, and other crucial details.
Our Architectural Shop Drawing Services:
Structural Shop Drawings:
Our Structural Shop Drawings Services:
MEP Shop Drawings:
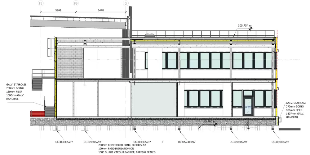
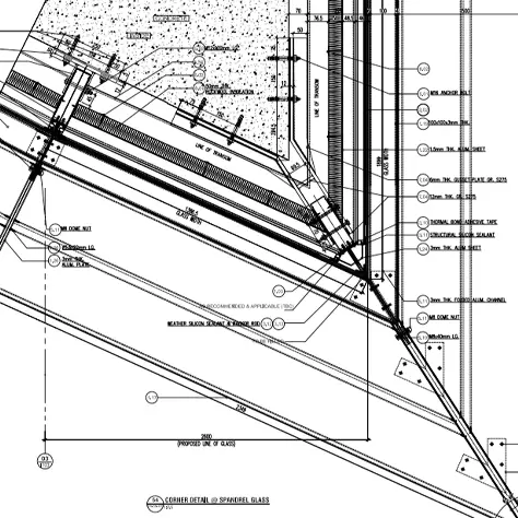
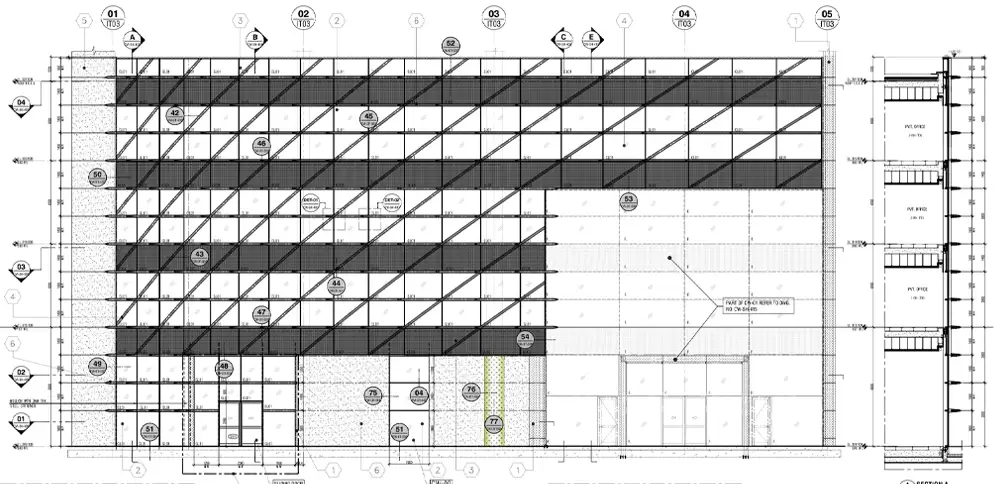
Facade Shop Drawings:
Facade shop drawings are made to represent the geometry, location, connections and design details of different building exterior components. The main purpose of facade shop drawings is to provide guidelines for accurate fabrication, assembling and erection of various façade systems.
Check our work samples
Architectural, Structural, Mechanical, MEP/HVAC and Facade CAD and BIM samples
Contact us now
If you have any queries related to our services, feel free to contact us today itself.
BIM Services
Architectural
Structural
MEP
Facade
Industrial









